Neem nu contact op. Bel 050-3114646

Reitdiephaven 558

9746 RL Groningen

€ 559.000 k.k.

Woonoppervlakte
135m2

Perceelopervlakte
170 m2

Bouwjaar
2018

Soort bouw
EENGEZINSWONING

Omschrijving

KORT
Pal achter de fraaie Reitdiephaven gelegen, uitermate complete en energiezuinige hoekwoning (BJ 2018) met uitgebouwde woonkamer en ruime serre op de begane grond, drie slaapkamers en een fraaie badkamer op de verdieping en een grote zolderkamer met dakkapel op de tweede verdieping. Achter de serre ligt een zonnige achtertuin met vrijstaande houten berging en een ruime parkeerplaats op eigen terrein. Volledig voorzien van vloerverwarming en isolatie, daarnaast extra energiezuinig door 16 zonnepanelen en een hybride warmtepomp. Energielabel A+!

OMGEVING
De woning ligt in de populaire en waterrijke wijk Reitdiep, bekend om haar kleurrijke architectuur en levendige karakter. De omgeving biedt een prettige combinatie van rust, ruimte en voorzieningen. Op loopafstand bevinden zich onder andere scholen, kinderopvang, een supermarkt, drogist en een gezondheidscentrum. Daarnaast zijn de ringweg, het openbaar vervoer en de Zernike Campus eenvoudig bereikbaar. Met de fiets ben je binnen circa 15 minuten in het centrum van Groningen.

INDELING
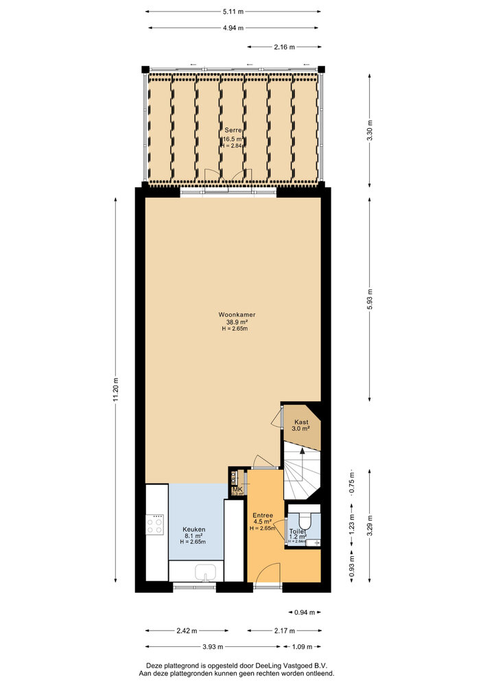
Begane grond:
Via de entree kom je binnen in de hal met toilet, trapopgang en doorloop naar de woonkamer.
Royale, tuingerichte woonkamer (ca. 47 m2 met open keuken) met inloopkast en grote raampartij over de volledige breedte, waardoor er een prettige lichtinval ontstaat en er een directe verbinding is met de serre via de openslaande deuren.
De serre (ca. 17 m2) is het gehele seizoen bruikbaar, maar ook volledig afsluitbaar met glazen schuifdeuren aan de tuinzijde.
Aan de voorzijde een moderne open keuken, die is uitgevoerd in U-opstelling met softclose kasten en lades en voorzien van inbouwapparatuur, waaronder een inductiekookplaat met afzuigkap in de bovengelegen koof, combi-oven/magnetron, separate oven, koel-vriescombinatie en een vaatwasser.
De begane grond is afgewerkt met een strakke gietvloer en vloerverwarming, wat zorgt voor een moderne en comfortabele uitstraling en warme voeten.

Verdieping: overloop.
Drie praktische slaapkamers van ca. 13 m2, 10 m2 en 8 m2, allen voorzien van laminaat.
De badkamer is luxe uitgevoerd en beschikt over een inloopdouche, een wastafelmeubel met kommen en een tweede toilet.

Tweede verdieping:
Royale slaapkamer/studio (ca. 28 m2!) welke extra veel ruimte en licht geniet door de grote dakkapel (2021).
Hier bevindt zich eveneens de wasmachineaansluiting en de technische ruimte met de cv-ketel en hybride warmtepomp.

TUIN
Verzorgde en extra brede achtertuin op het zonnige noordwesten (ca. 60 m2 met zon van ’s morgens tot ’s avonds!) voorzien van een gazon, borders en een dubbele achterom. Aan de achterzijde bevindt zich de ruime parkeerplaats met aansluitend een praktische berging voor fietsen en opslag.

BIJZONDERHEDEN
- Uitermate compleet, modern en energiezuinig
- comfortabele serre
- grote dakkapel
- gelegen aan een wandelpad met rustige weg achter de haven
- duurzaam: 16 zonnepanelen, volledig geïsoleerd en voorzien van HR++ glas, hybride warmtepomp (2025) met cv-ketel

Let op:
- Standaard waarborgsomregeling van toepassing
- aanvaarding in overleg.

Kenmerken

  • Woonhuistype: Tussenwoning
  • Bouwvorm: Bestaande bouw
  • Daktype: Dwarskap
  • Energieklasse: A_p

Bezichtig deze woning.

Vul dit formulier in om direct een vrijblijvende bezichtiging in te plannen.