Neem nu contact op. Bel 050-3114646

Gerbrand Bakkerstraat 102a

9713 HP Groningen

€ 475.000 k.k.

Woonoppervlakte
109m2

Perceelopervlakte
82 m2

Bouwjaar
1924

Soort bouw
EENGEZINSWONING

Omschrijving

KORT
Karakteristieke en sfeervolle stadswoning in Amsterdamse Schoolstijl met zonnige tuin op het zuid/westen en fietsenberging. In 2006 is deze woning volledig gerenoveerd en geïsoleerd. Vier slaapkamers, een zolderverdieping en de unieke indeling maken dit woonhuis helemaal compleet. Perfect gezinshuis op een topplek!

OMGEVING
De Gerbrand Bakkerstraat is een begrip op zich: een kenmerkende, levendige straat op een toplocatie. Het centrum van Groningen, supermarkten, scholen en het UMCG zijn op loopafstand te bereiken. Ontzettend leuke speeltuin binnen handbereik, maar ook kinderdagverblijf, huisarts, tandarts en fysiotherapeut in de directe omgeving. Dit is stads wonen zoals het bedoeld is.

INDELING 
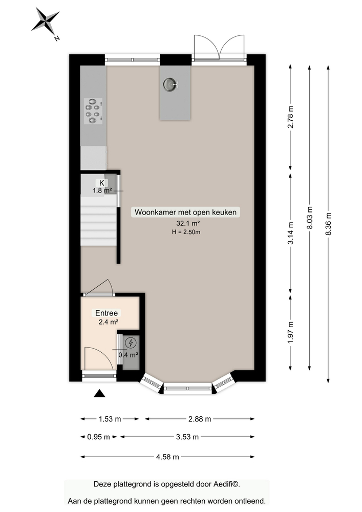
Begane grond: entree met hal en trapopgang. Living van ca. 32 m2 met eiken vloer, ruime trapkast en openslaande deuren naar de tuin. De zitkamer is aan de voorzijde gelegen en heeft een gezellige erker met zicht door de straat. Aan de achterzijde ligt de open keuken. De moderne keuken heeft een fraai (schier)eiland met vaatwasser en spoelbak. Aan de wand is het kookgedeelte geplaatst met een 6-pits gaskookplaat, afzuigkap, combimagnetron en koelkast.
Eerste verdieping: overloop met toilet en fonteintje. Twee slaapkamers van ca. 16 (met erker) en 6 m2. Moderne en lichte badkamer (6 m2) met ligbad, douche en dubbel wastafelmeubel.
Tweede verdieping: Overloop. 2 ruime slaapkamers (ca. 13 en 12 m2). Praktische berging met wasmachineaansluiting en cv-opstelling.
Derde verdieping: middels een vlizotrap te bereiken royale zolderverdieping. 

TUIN
Zonnige achtertuin op het zuid/westen met achterom middels een afgesloten brandgang. De stenen fietsenberging ligt direct achter de tuin in het gangpad. Voor het gangpad (mandelige gang) is een VVE opgericht. Kosten ca. 30,- euro per jaar voor o.a. verlichting.

ALGEMEEN
- instapklaar huis;
- zorgvuldig bewoond; 
- bouwjaar 1924;
- professionele renovatie 2006;
- woonoppervlakte 109 m2;
- goed geïsoleerd (label B);
- HR cv-combiketel 2014;
- grond is in eigendom, geen erfpacht!

LET OP
- standaard waarborgsomregeling van toepassing;
- ouderdomsclausule van toepassing;
- bekijk onze uitgebreide plattegrond op funda;
- aanvaarding in overleg. Voorkeur vanaf februari 2026.

Kenmerken

  • Woonhuistype: Tussenwoning
  • Bouwvorm: Bestaande bouw
  • Daktype: Dwarskap
  • Energieklasse: B

Deze woning is al verkocht door Boekholt & partners!

Wilt u ook uw woning door een makelaar van Boekholt & partners laten verkopen? Vul dan het onderstaande formulier in.