Neem nu contact op. Bel 050-3114646

Herman Colleniusstraat 30

9718 KT Groningen

€ 650.000 k.k.

Woonoppervlakte
155m2

Perceelopervlakte
79 m2

Bouwjaar
1910

Soort bouw
HERENHUIS

Omschrijving

KORT
Herenhuis in zeer goede staat nabij het centrum van de stad met een zonnige plaats aan de achterzijde van de woning. Gemoderniseerd, met chique uitstraling en in topconditie verkerend. Woonoppervlakte 155 m2. Onder andere 4 royale slaapkamers en 2 badkamers. Instapklaar!

OMGEVING
Deze bekende en geliefde stadsbuurt ten westen van het centrum kenmerkt zich door brede straten en statige pleinen en ligt op 10 minuten loopafstand van het stadscentrum, 5 minuten wandelen van winkelcentrum Westerhaven en het Noorderplantsoen. Kinderopvang, winkels en scholen liggen in de directe omgeving.

INDELING
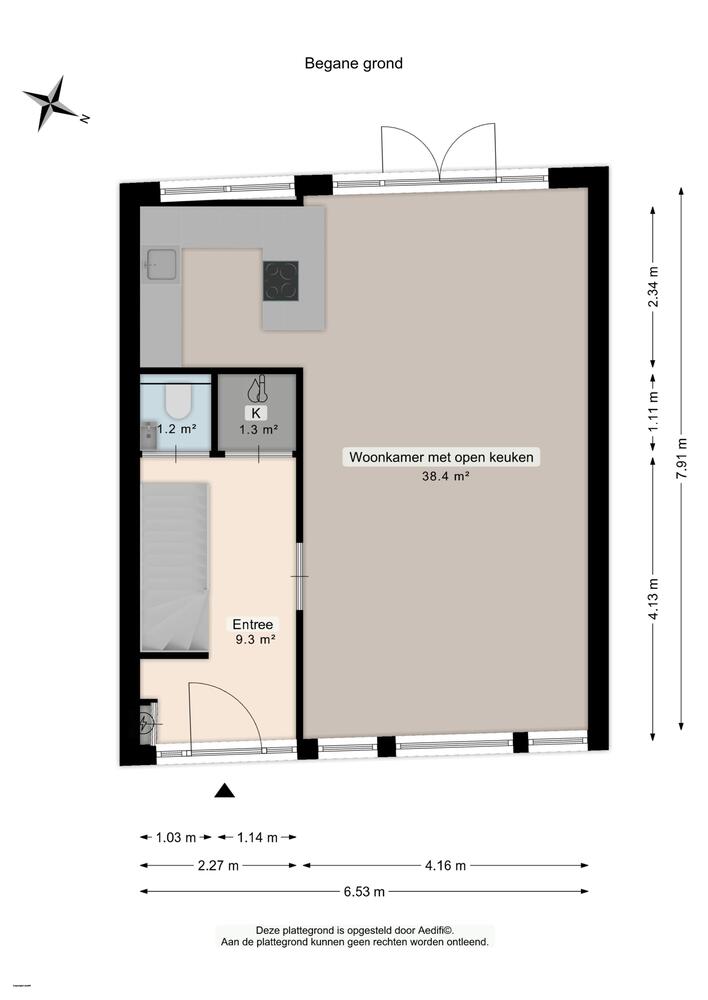
Begane grond: fraaie entree, lichte living (met parketvloer uit 2019) van ca. 38 m2 . De voorzijde is bestemd voor het zitgedeelte en aan de achterzijde is een vernieuwde open keuken uit 2019 gesitueerd (v.v. inbouwapparatuur en in U-vorm). Ook openslaande deuren naar de achter gelegen plaats. Vanuit de hal is ook een modern toilet, de stookruimte en kelder te bereiken.
Eerste verdieping: overloop, twee flinke slaapkamers van ca. 22 (inclusief inloopkast) en 17 m2, badkamer v.v. dubbel wastafelmeubel, tweede toilet en douche.
Tweede verdieping: overloop, twee slaapkamers van ca. 14 en 17 m2, tweede badkamer v.v. jacuzzi, dubbele wastafel, toilet, en douche. Berging/washok (6 m2) met wasmachineaansluiting.

ALGEMEEN
- bouwjaar 1910;
- woonoppervlakte ca. 155 m2;
- zeer goed staat van onderhoud;
- energielabel C;
- aan achterzijde HR++ beglazing
- aan voorzijde triple beglazing (2023);
- dak- en vloerisolatie;
- HR-combiketel 2018;
- 7 zonnepanelen;
- 4 slaapkamers, 2 badkamers;
- comfortabel wonen op topplek!

LET OP
- standaard waarborgsomregeling van toepassing;
- ouderdomsclausule van toepassing;
- bekijk onze uitgebreide plattegrond op funda;
- aanvaarding in overleg. Snel is mogelijk.

Kenmerken

  • Woonhuistype: Tussenwoning
  • Bouwvorm: Bestaande bouw
  • Daktype: Plat dak
  • Energieklasse: C

Deze woning is al verkocht door Boekholt & partners!

Wilt u ook uw woning door een makelaar van Boekholt & partners laten verkopen? Vul dan het onderstaande formulier in.