Neem nu contact op. Bel 050-3114646

Jozef Israelsstraat 62a

9718 GN Groningen

€ 510.000 k.k.

Woonoppervlakte
160m2

Perceelopervlakte
144 m2

Bouwjaar
1906

Omschrijving

Karakteristieke, comfortabele en goed geïsoleerde bovenwoning (maisonnette) met prachtige hoge plafonds, woonkamer en suite, heel veel lichtinval, een werkkamer, vier slaapkamers, inpandige fietsenberging en zonnig dakterras.
De woning is (nagenoeg) volledig geïsoleerd en voorzien van 12 zonnepanelen, waardoor comfort en duurzaamheid hier hand in hand gaan. Energielabel B.
Ideaal voor een groot gezin of voor wie graag veel leefruimte wil en bovendien gelegen op loopafstand van het stadscentrum en voorzieningen. Uitvalswegen A7 en A28 liggen op 5 autominuten.

Indeling:
Begane grond
Entree/hal met ruimte voor de fietsen en de trapopgang.
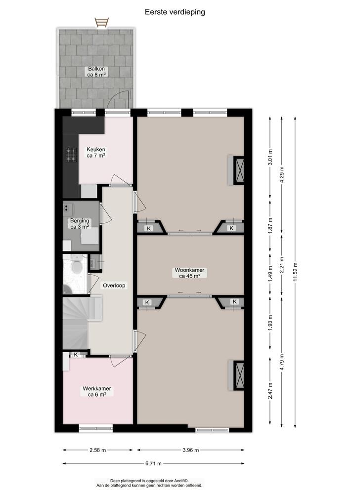
Eerste verdieping:
Overloop met fraaie trappartij, modern toilet en toegang tot alle vertrekken.
Sfeervolle woonkamer en suite (originele dubbele suite totaal ca. 45 m²) met hoog plafond, schouwen en suite deuren. Door de hoge ramen biedt het veel licht en daarmee veel gevoel van ruimte.
Nette dichte keuken (ca. 7 m², 2018) in hoekopstelling, voorzien van inbouwapparatuur: koelkast, oven, vaatwasser, gaskookplaat en afzuigkap. Vanuit de keuken is het zonnige dakterras op het zuiden (ca. 8 m²) bereikbaar.
Naast de woonkamer aan de voorzijde bevindt zich een werk-/slaapkamer (ca. 6 m²).
Alle vloeren zijn voorzien van laminaat.

Tweede verdieping
Ruime overloop met daklicht en toegang tot vier praktische slaapkamers van ca. 18 m², 11 m², 16 m² en 7 m²).
De badkamer (ca. 8 m²) is compleet ingericht met een ligbad, wastafel, toilet, inloopdouche, wasmachineaansluiting en een daklicht.

Bijzonderheden:
- Uitermate ruime woning met vijf slaapkamers
- nagenoeg volledig voorzien van dubbel glas
- gevel- en dakisolatie aanwezig
- twee cv-ketels (per verdieping één)
- 12 zonnepanelen.

Kenmerken

  • Bouwvorm: Bestaande bouw
  • Daktype: Samengesteld dak
  • Energieklasse: B

Deze woning is al verkocht door Boekholt & partners!

Wilt u ook uw woning door een makelaar van Boekholt & partners laten verkopen? Vul dan het onderstaande formulier in.